Сдам в аренду офис 233.1 м.кв.

на карте
Просмотров 6
3 982 210 руб. / мес
Санкт-Петербург , Садовая улица, д.28-30к36
Кириллова Анастасия
Показать телефон
назначения
Данные актуальны на 26.03.2026
Пожаловаться на объявление
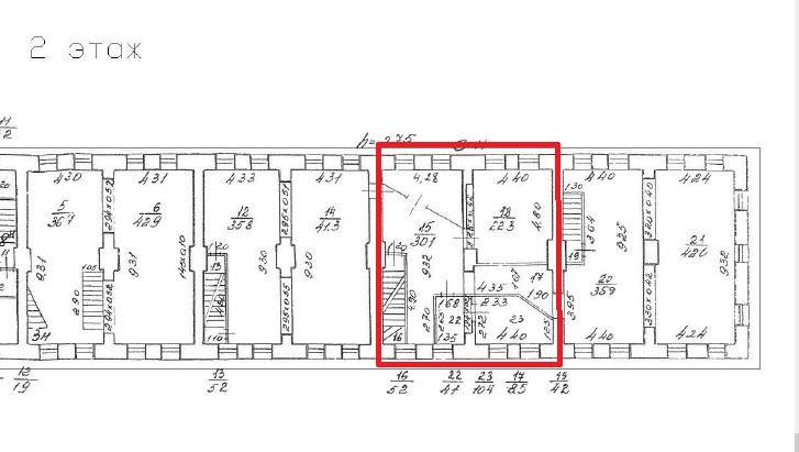
Код лота: 62C46C9-7001-645-1. Реализуется на торгах. Реализуется право аренды помещения свободного назначения, расположенного на Садовой улице, на территории Апраксина двора. Адрес: Санкт-Петербург, Садовая ул, дом 28-30, корп. 36, пом. 6-Н Договор аренды заключается сроком на 3 (три) года для использования под нежилые цели. Помещение находится в собственности Санкт-Петербурга. Объект расположен в историческом центре Санкт-Петербурга, в пешей доступности от станции метро и остановок наземного общественного транспорта. В непосредственной близости находится Универмаг Большой Гостиный двор, торговые ряды Апраксина двора, офисные и торговые помещения, а также объекты общественного питания. В настоящее время помещение не используется, требуется проведение ремонтных работ. Инженерные коммуникации: электроснабжение, отопление, водоснабжение, канализация. Кадастровый номер (пом. 6-Н) : 78: 31: 0105610: 1870 Площадь помещения: 233,1 кв. м (Общая площадь пом. 6-Н - 707,7 кв. м) Назначение: нежилое. Этаж 1-2-мансарда. Входы: 1 отдельный с улицы Окна: есть Объект относится к числу объектов культурного наследия регионального значения. Помещение расположено в непосредственной близости от крупной городской магистрали Садовой улице. Местоположение объекта характеризуется высокими пешеходным и автомобильным трафиками. Станция метро «Гостиный двор» и Невский проспект - 650 м Оптимальное использование помещения: в качестве помещения торгово-офисного назначения Торги проходят по поручению Комитета Имущественных отношений Санкт-Петербурга https: //catalog. lot-online. ru/index. php?dispatch=products. view&product_id=1598382

Дополнительная информация

Тип здания - Класс БЦ - Этаж 1 Этажность 1 Количество комнат - Вход - Ремонт -
Интернет - Кондиционер - Вентиляция - Пожарная сигнализация - Пропускная система - Охраняемая парковка -
Объекты, находящиеся поблизости
Банки, банкоматы
ВТБ 368м
Банк ВТБ (ПАО) 373м
ПАО "Банк "Санкт-Петербург" 736м
Санкт-Петербург 746м
ПАО "Банк "Санкт-Петербург" 747м
Столовые, кафе
Выпечка 29м
Фунт изюма 36м
Perbacco 38м
Mad Espresso Team 70м
Bella, Ciao! 85м
Медучреждения
ПетФарм 94м
Здоровая жизнь 212м
Аптека Плюс 301м
Петербургские аптеки 309м
Мой Зубной 342м
Динамика изменения цен на рынке недвижимости ?

За последние полгода средняя сумма аренды за кв.м. выросла на 52 руб. Колебание цен происходило от 1270 руб. до 1328 руб. На текущий момент наблюдается тенденция к росту цены.
Похожие объявления
Обновлено
26.03.2026
Фотографии
5
Объявление 736295
Санкт-Петербург, Садовая улица, д.28-30к26
2 295 549
руб. / мес Аренда
226.9 м2
Обновлено
26.03.2026
Фотографии
10
Объявление 736297
Санкт-Петербург, Садовая улица, д.28-30к36
3 991 955
руб. / мес Аренда
237.4 м2
Обновлено
26.03.2026
Фотографии
10
Объявление 736298
Санкт-Петербург, Садовая улица, д.28-30к36
4 085 922
руб. / мес Аренда
237.2 м2
Обновлено
26.03.2026
Фотографии
7
Объявление 736270
Санкт-Петербург, Садовая улица, д.28-30к26
3 016 470
руб. / мес Аренда
226.1 м2
Обновлено
17.03.2026
Фотографии
15
Объявление 692677
Санкт-Петербург, Центральный, Садовая улица, д.28-30к28
1 521 611
руб. / мес Аренда
226.5 м2
Обновлено
17.03.2026
Фотографии
13
Объявление 735732
Санкт-Петербург, Московский, Дунайский проспект, д.13 к1
372 400
руб. / мес Аренда
196 м2
Обновлено
13.03.2026
Фотографии
15
Объявление 693173
Санкт-Петербург, Садовая улица, д.28
2 186 973
руб. / мес Аренда
219.9 м2
Обновлено
11.03.2026
Фотографии
8
Объявление 696623
Санкт-Петербург, Садовая улица, д.28-30к36
1 654 442
руб. / мес Аренда
198.9 м2
Обновлено
07.03.2026
Фотографии
8
Объявление 735435
Санкт-Петербург, Центральный, Садовая улица, д.28-30к40
2 408 183
руб. / мес Аренда
215.7 м2
Обновлено
06.03.2026
Фотографии
10
Объявление 713928
Санкт-Петербург, Центральный, Садовая улица, д.28-30к20
770 345
руб. / мес Аренда
231.2 м2
Вход в личный кабинет