Сдам в аренду помещение свободного назначения 268.4 м.кв.

на карте
Просмотров 32
791 780 руб. / мес
Санкт-Петербург , Московский, Заставская улица, д.33стр3
СК СОЮЗ
Показать телефон
Данные актуальны на 29.04.2026
Пожаловаться на объявление
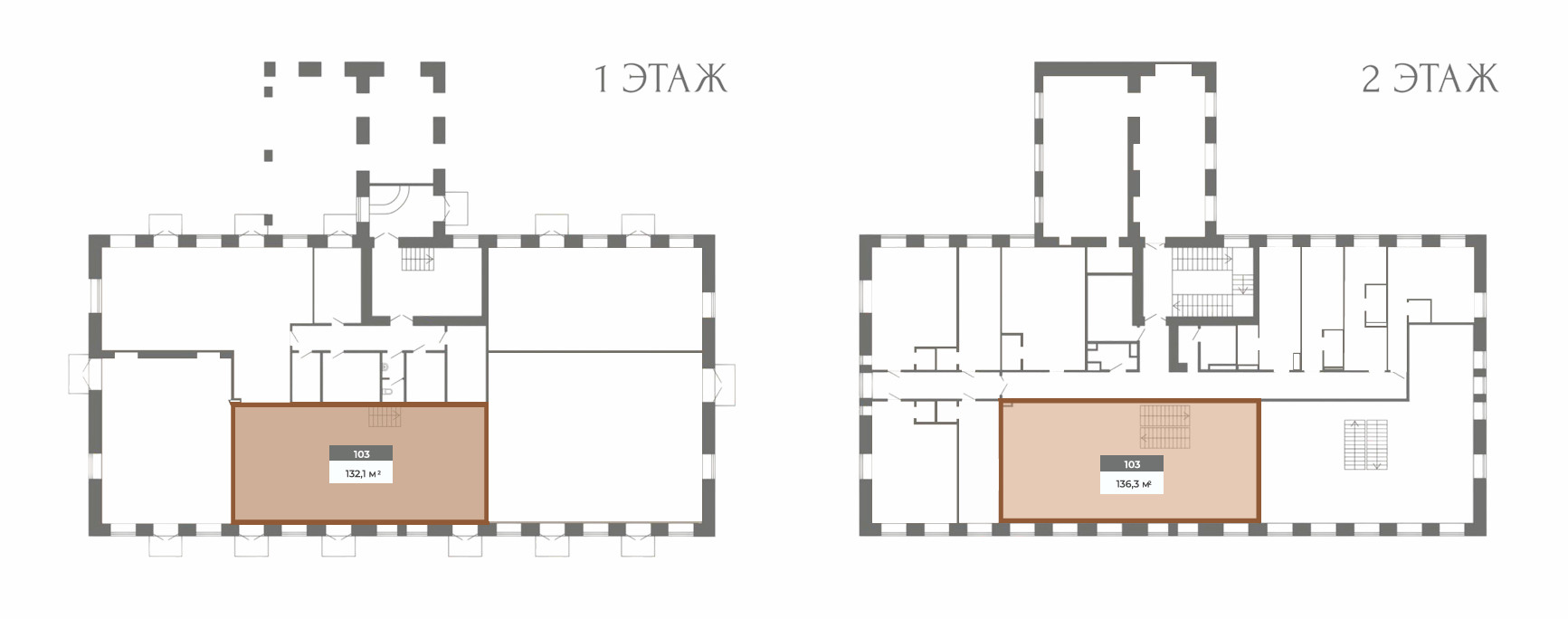
Предлагаем в аренду просторное коммерческое помещение 268,4 м на двух этажах Расположение: Бутик-апарт-отель «Пространство» 4* в составе Лофт-квартала «Скороход». ХАРАКТЕРИСТИКИ: Общая площадь: 268,4 м (132 + 136 м) Высота потолков: 4 м - создает ощущение простора и позволяет реализовать любые дизайнерские решения. 3 входа с улицы Отличная видимость: 3 витринных окна на 1 этаже и 6 окон на 2 этаже - привлекательная презентация бизнеса. Электрическая мощность: 40 кВт (при необходимости можно увеличить) . Идеально подходит для ресторана, бара, крупного кафе или кофейни премиум-формата. Почему это выгодное решение для вашего бизнеса? Локация - новый центр притяжения. Помещение находится в сердце Лофт-квартала «Скороход» - у метро «Московские ворота». Это перспективная территория для работы, шопинга и отдыха. Уникальная атмосфера и инфраструктура: Атмосфера исторического квартала сочетается с современными решениями. Полностью обновленные коммуникации и оборудование. Пешеходные улицы, lounge-зоны, арт-объекты, селфи-зоны, спортивные и детские площадки. Территория активно благоустраивается: планируется тематическое зонирование и регулирование потоков. Готовый поток клиентов. На территории квартала расположены 4 бизнес-центра с офисными площадями более 30 000 м, что гарантирует высокую проходимость и узнаваемость адреса. Отличная транспортная доступность: 10 минут пешком до метро «Московские ворота». Около 30 минут транспортом до выезда на КАД. На территории предусмотрена автомобильная стоянка.

Дополнительная информация

Тип здания - Этаж 2 Этажность 4 Количество комнат - Вход Отдельный Ремонт Без ремонта
Интернет - Кондиционер - Вентиляция - Пожарная сигнализация - Красная линия -
Объекты, находящиеся поблизости
Банки, банкоматы
ПАО "Банк "Санкт-Петербург" 126м
ПСКБ 379м
Банк ГПБ (АО) 462м
АО "Россельхозбанк" 463м
ПАО Сбербанк 466м
Столовые, кафе
Baggins Coffee 237м
Бистро 314м
У тёщи на блинах 328м
Автомася 372м
Кафе на Цветочной 373м
Медучреждения
Невис 367м
Red Dental 374м
Столички 464м
СиноМед 893м
Help 942м
Динамика изменения цен на рынке недвижимости ?

По району Московский, в категории Универсальные помещения
За последние полгода средняя сумма аренды за кв.м. выросла на 7 руб. Колебание цен происходило от 1343 руб. до 1362 руб. Тендов к значительному изменению цены в последнем месяце не наблюдается.
За последние полгода средняя сумма аренды за кв.м. выросла на 19 руб. Колебание цен происходило от 1343 руб. до 1362 руб. Тендов к значительному изменению цены в последнем месяце не наблюдается.
Похожие объявления
Обновлено
07.04.2026
Фотографии
4
Объявление 736769
Санкт-Петербург, Центральный, Парадная улица, д.3к2
990 000
руб. / мес Аренда
235 м2
Обновлено
02.04.2026
Фотографии
9
Объявление 735504
Санкт-Петербург, Московский, Заставская улица, д.33стр3
827 180
руб. / мес Аренда
280.4 м2
Обновлено
02.04.2026
Фотографии
5
Объявление 726516
Санкт-Петербург, Малая Митрофаньевская улица, д.5к1
391 950
руб. / мес Аренда
261.3 м2
Обновлено
23.03.2026
Фотографии
9
Объявление 736112
Санкт-Петербург, Красногвардейский, Косыгина проспект, д.24к2
352 500
руб. / мес Аренда
235 м2
Обновлено
20.03.2026
Фотографии
10
Объявление 732965
Санкт-Петербург, Приморский, Коломяжский проспект, д.15к1
559 200
руб. / мес Аренда
233 м2
Обновлено
05.03.2026
Фотографии
2
Объявление 725708
Санкт-Петербург, Московский, Ленинский, д.148
435 000
руб. / мес Аренда
290 м2
Обновлено
12.02.2026
Фотографии
7
Объявление 733963
Санкт-Петербург, Выборгский, 3-й Верхний переулок, д.15
770 000
руб. / мес Аренда
220 м2
Обновлено
02.12.2025
Фотографии
6
Объявление 730493
Санкт-Петербург, Красногвардейский, шоссе Революции, д. 69 литера А
366 860
руб. / мес Аренда
215.8 м2
Обновлено
05.10.2025
Фотографии
3
Объявление 727131
Санкт-Петербург, Красногвардейский, шоссе Революции, д. 88 литера Б
195 000
руб. / мес Аренда
245 м2
Вход в личный кабинет