Сдам в аренду помещение свободного назначения 548.8 м.кв.

на карте
Просмотров 28
1 618 960 руб. / мес
Санкт-Петербург , Московский, Заставская улица, д.33стр3
СК СОЮЗ
Показать телефон
Данные актуальны на 04.04.2026
Пожаловаться на объявление
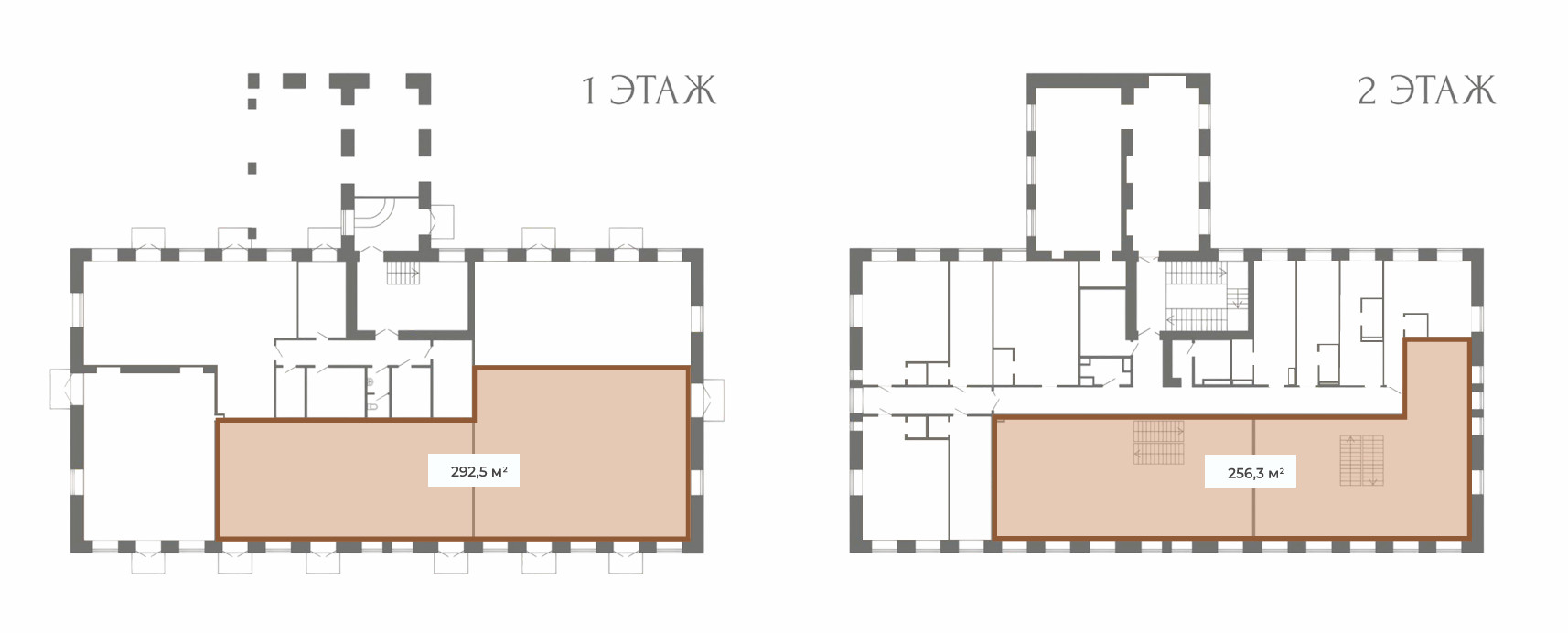
Предлагаем в аренду просторное коммерческое помещение 548,8 м на двух этажах. Уникальное предложение: готовый инфраструктурный концепт и профессиональный сервис в пешей доступности от метро. РАСПОЛОЖЕНИЕ: ул. Заставская, 33, корпус 3, Бутик-апарт-отель «Пространство» 4* в Лофт-квартале «Скороход». ХАРАКТЕРИСТИКИ: Общая площадь: 548,8м: 1 этаж: 292,5 м и 2 этаж: 256,3 м Высота потолков: 4 м - создает ощущение простора и позволяет реализовать масштабные дизайнерские проекты. 6 входов с улицы - отличная транспортная доступность и логистика. Панорамное остекление: 7 витринных окон на 1 этаже и 15 окон на 2 этаже - максимальная видимость и привлекательность. Электрическая мощность: 80 кВт (при необходимости можно увеличить) . Идеально подходит для ресторана премиум-класса, крупного фуд-холла, клубного заведения или многофункционального развлекательного центра. Культурно-развлекательная инфраструктура «Пространство Резиденция Авеню» будет включать в себя всё, что необходимо городскому жителю для полноценного отдыха после напряжённого рабочего дня. Проект войдёт в сеть апарт-отелей под брендом «Пространство Резиденция Авеню». Здание находится в центре Лофт-квартала "Скороход" - новой точки притяжения Московского района. Звоните и записывайтесь на просмотр!

Дополнительная информация

Тип здания - Этаж 2 Этажность 4 Количество комнат - Вход Отдельный Ремонт Без ремонта
Интернет - Кондиционер - Вентиляция - Пожарная сигнализация - Красная линия -
Объекты, находящиеся поблизости
Банки, банкоматы
ПАО "Банк "Санкт-Петербург" 126м
ПСКБ 379м
Банк ГПБ (АО) 462м
АО "Россельхозбанк" 463м
ПАО Сбербанк 466м
Столовые, кафе
Baggins Coffee 237м
Бистро 314м
У тёщи на блинах 328м
Автомася 372м
Кафе на Цветочной 373м
Медучреждения
Невис 367м
Red Dental 374м
Столички 464м
СиноМед 893м
Help 942м
Динамика изменения цен на рынке недвижимости ?

По району Московский, в категории Универсальные помещения
За последние полгода средняя сумма аренды за кв.м. выросла на 7 руб. Колебание цен происходило от 1343 руб. до 1362 руб. Тендов к значительному изменению цены в последнем месяце не наблюдается.
За последние полгода средняя сумма аренды за кв.м. выросла на 19 руб. Колебание цен происходило от 1343 руб. до 1362 руб. Тендов к значительному изменению цены в последнем месяце не наблюдается.
Похожие объявления
Обновлено
02.04.2026
Фотографии
9
Объявление 735506
Санкт-Петербург, Московский, Заставская улица, д.33с3
1 900 095
руб. / мес Аренда
644.1 м2
Обновлено
04.03.2026
Фотографии
5
Объявление 713834
Санкт-Петербург, Выборгский, Заречная улица, д.19 к1
864 000
руб. / мес Аренда
480 м2
Обновлено
12.02.2026
Фотографии
7
Объявление 733972
Санкт-Петербург, Выборгский, 3-й Верхний переулок, д.15
1 250 000
руб. / мес Аренда
500 м2
Обновлено
04.02.2026
Фотографии
6
Объявление 733507
Санкт-Петербург, Московский, Люботинский пр-кт, д. 5
450 000
руб. / мес Аренда
450 м2
Вход в личный кабинет