Продам офис 26.2 м.кв.

на карте
Просмотров 32
5 197 200 руб.
Санкт-Петербург , Адмиралтейский, Подольская улица, д.41 литера Б
Кириллова Анастасия
Показать телефон
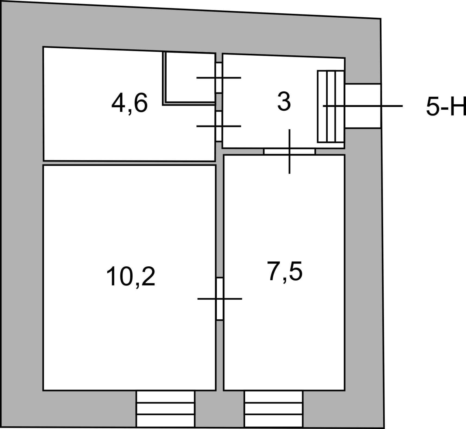
назначения
Данные актуальны на 08.05.2026
Пожаловаться на объявление
Код лота: 62C46C9-4001-8452-1. Реализуется на торгах. Продается помещение в центре города в пешей доступности ст. м "Технологический институт". Адрес: г. Санкт-Петербург, Подольская ул. , д. 41, лит. Б, пом. 5-Н. Общая площадь: 26,2 кв. м Кадастровый номер: 78: 32: 0001713: 1222 Этаж: 1 этаж (всего 3 этажа) Вход: общий со двора Окна: 2 во двор. Высота потолков: 3,16 м. Помещение в собственности Санкт-Петербурга. Состояние отделки помещений: требуется проведение ремонтных работ. Инженерные коммуникации: Электроснабжение, водоснабжение, канализация, отопление. Транспортная доступность: Помещение расположено в 880 м от станции метро «Технологический институт» (10 мин пешком) . Помещение возможно использовать после проведения ремонтных работ в качестве офисного, апартаментов, либо сферы услуг (студия красоты, массажный кабинет, мастерская и т.д. ) . https: //catalog. lot-online. ru/index. php?dispatch=products. view&product_id=1602980

Дополнительная информация

Тип здания - Класс БЦ - Этаж 1 Этажность 3 Количество комнат - Вход - Ремонт -
Интернет - Кондиционер - Вентиляция - Пожарная сигнализация - Пропускная система - Охраняемая парковка -
Динамика изменения цен на рынке недвижимости ?

За последние полгода средняя сумма за кв.м. уменьшилась на 991 руб. Колебание цен происходило от 100072 руб. до 101702 руб. На текущий момент наблюдается тенденция к уменьшению цены.
За последние полгода средняя сумма за кв.м. выросла на 1760 руб. Колебание цен происходило от 120141 руб. до 122822 руб. На текущий момент наблюдается тенденция к уменьшению цены.
Похожие объявления
Обновлено
18.05.2026
Фотографии
нет
Объявление 738509
Санкт-Петербург, Выборгский, Асафьева улица, д.6к2 литера А
4 770 200
руб. Продажа
23 м2
Обновлено
18.05.2026
Фотографии
1
Объявление 738323
Санкт-Петербург, Красносельский, Петергофское шоссе, д.3к1 литера Б
2 674 572
руб. Продажа
30.2 м2
Обновлено
13.05.2026
Фотографии
6
Объявление 738273
Санкт-Петербург, Центральный, Гагаринская улица, д.16 литера А
4 118 361
руб. Продажа
29 м2
Обновлено
12.05.2026
Фотографии
15
Объявление 736596
Санкт-Петербург, Калининский, Культуры проспект, д.29к4 литера А
4 282 200
руб. Продажа
23.4 м2
Обновлено
08.05.2026
Фотографии
15
Объявление 737705
Санкт-Петербург, Центральный, 5-я Советская улица, д.15-17/12 литера А
5 720 000
руб. Продажа
27.5 м2
Обновлено
08.05.2026
Фотографии
8
Объявление 735238
Санкт-Петербург, Центральный, Кирочная улица, д.37 литера А
1 671 400
руб. Продажа
26.5 м2
Обновлено
08.05.2026
Фотографии
12
Объявление 735239
Санкт-Петербург, Центральный, Кирочная улица, д.37 литера А
1 891 000
руб. Продажа
29.8 м2
Обновлено
08.05.2026
Фотографии
3
Объявление 731427
Санкт-Петербург, Адмиралтейский, Большая Подьяческая улица, д.1-3 литера А
1 263 920
руб. Продажа
21.4 м2
Обновлено
02.04.2026
Фотографии
13
Объявление 732746
Санкт-Петербург, Василеостровский, Головнина бульвар, д.4стр1
7 497 204
руб. Продажа
26.9 м2
Обновлено
02.04.2026
Фотографии
13
Объявление 732748
Санкт-Петербург, Василеостровский, Головнина бульвар, д.4стр1
7 018 909
руб. Продажа
25 м2
Вход в личный кабинет