Продам офис 71.9 м.кв.

Просмотров 24
29 331 120 руб.
Санкт-Петербург , Московский проспект, д.114
М-девелопмент
Показать телефон
назначения
Данные актуальны на 04.05.2026
Пожаловаться на объявление
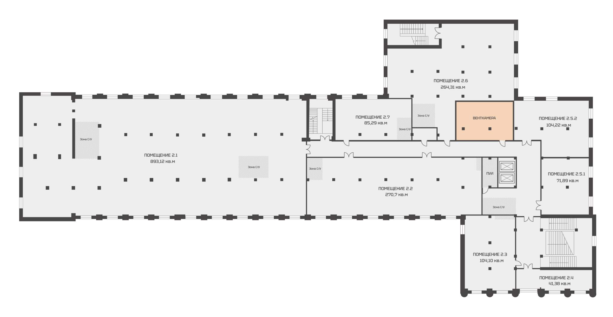
В продаже офис на 2 этаже в премиальном бизнес-центре у Московских ворот. До конца мая отделка Whitebox в подарок! ХАРАКТЕРИСТИКИ ПОМЕЩЕНИЯ №2.5. 1: - общая площадь 72 м2 - свободная планировка - высота потолка 5 м. - шаговая доступность от м. Московские ворота - вид на благоустроенный двор с парковкой - в историческом здании премиальный бизнес-центр с современными технологиями: инженерия, безопасность, автоматизация, сервисы. - уютное лаунж-лобби с баром - ресторан, банк, кофейня, помещения сферы услуг и другая инфраструктура на 1-м этаже - собственная охраняемая парковка на территории Помещение подойдет под офис IT-компании, консалтинговой или юридической компании, профессиональные сервисы: аудит, маркетинг, дизайн и т.д. Параметры доходности: - средняя прогнозируемая ставка аренды 3500 р. /м2 - годовая доходность: 11,5% - окупаемость: 8,6 лет Капитализация: - Прогноз стоимости м2 на конец 2027 г: 470 000-500 000 р. /м2 - ROI до 27% за период стройки (за 2 года) от текущих цен Цена указана при 100% оплате. Возможна рассрочка.

Дополнительная информация

Тип здания Бизнес-центр Класс БЦ A Этаж 2 Этажность 3 Количество комнат - Вход - Ремонт Без ремонта
Интернет - Кондиционер Есть Вентиляция Есть Пожарная сигнализация - Пропускная система - Охраняемая парковка Есть
Динамика изменения цен на рынке недвижимости ?

За последние полгода средняя сумма за кв.м. выросла на 1760 руб. Колебание цен происходило от 120141 руб. до 122822 руб. На текущий момент наблюдается тенденция к уменьшению цены.
Похожие объявления
Обновлено
18.05.2026
Фотографии
нет
Объявление 738514
Санкт-Петербург, Калининский, Просвещения проспект, д.87к1 литера А
7 800 000
руб. Продажа
59.2 м2
Обновлено
14.05.2026
Фотографии
10
Объявление 699381
Санкт-Петербург, Фрунзенский, Купчинская улица, д.23к1 литера В
4 310 000
руб. Продажа
60.6 м2
Обновлено
12.05.2026
Фотографии
15
Объявление 736875
Санкт-Петербург, Калининский, Просвещения проспект, д.87к1 литера А
7 600 000
руб. Продажа
57.7 м2
Обновлено
12.05.2026
Фотографии
12
Объявление 736612
Санкт-Петербург, Василеостровский, Наличная улица, д.5 литера А
3 337 310
руб. Продажа
62 м2
Обновлено
08.05.2026
Фотографии
15
Объявление 737822
Санкт-Петербург, Невский, Октябрьская набережная, д.88к2 литера В
2 147 200
руб. Продажа
68.3 м2
Обновлено
08.05.2026
Фотографии
15
Объявление 737706
Санкт-Петербург, Адмиралтейский, Большая Морская улица, д.55 литера А
8 956 000
руб. Продажа
73.4 м2
Обновлено
08.05.2026
Фотографии
13
Объявление 736191
Санкт-Петербург, Центральный, Чайковского улица, д.51 литера А
8 100 000
руб. Продажа
64.9 м2
Обновлено
08.05.2026
Фотографии
15
Объявление 730439
Санкт-Петербург, Выборгский, Капитана Воронина улица, д.8 литера А
3 245 200
руб. Продажа
76.8 м2
Обновлено
04.05.2026
Фотографии
15
Объявление 736475
Санкт-Петербург, Московский проспект, д.114
34 798 320
руб. Продажа
85.3 м2
Обновлено
04.05.2026
Фотографии
15
Объявление 736489
Санкт-Петербург, Московский проспект, д.114
33 345 041
руб. Продажа
82.1 м2
Вход в личный кабинет