Продам офис 270.7 м.кв.

Просмотров 17
115 047 500 руб.
Санкт-Петербург , Московский проспект, д.114
М-девелопмент
Показать телефон
назначения
Данные актуальны на 04.05.2026
Пожаловаться на объявление
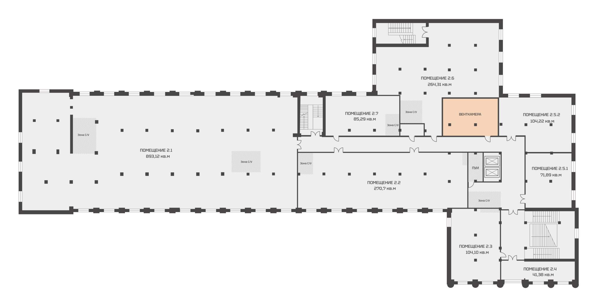
В продаже офис на 2 этаже в премиальном бизнес-парке у Московских ворот. До конца мая отделка Whitebox в подарок! ХАРАКТЕРИСТИКИ ПОМЕЩЕНИЯ №2.2: - общая площадь 270,7 м2: - свободная планировка, широкие возможности для зонирования пространства - высота потолка 5 м. - уникальный вид на Триумфальные Московские ворота и на Московский проспект! - в историческом здании премиальный бизнес-центр с современными технологиями: инженерия, безопасность, автоматизация, сервисы. - уютное лаунж-лобби с баром - ресторан, банк, кофейня, помещения сферы услуг и другая инфраструктура на 1-м этаже - собственная охраняемая парковка на территории Помещение подойдет под офис IT-компании, консалтинговой или юридической компании, представительство крупного промышленного предприятия, коворкинг и т.д. Параметры доходности: - средняя прогнозируемая ставка аренды 3500 р. /м2 - годовая доходность: 11,5% - окупаемость: 8,6 лет Капитализация: - Прогноз стоимости м2 на конец 2027 г: 470 000-500 000 р. /м2 - ROI до 27% за период стройки (за 2 года) от текущих цен Цена указана при 100% оплате. Возможна рассрочка.

Дополнительная информация

Тип здания Бизнес-центр Класс БЦ A Этаж 2 Этажность 3 Количество комнат - Вход - Ремонт Без ремонта
Интернет - Кондиционер Есть Вентиляция Есть Пожарная сигнализация - Пропускная система - Охраняемая парковка Есть
Динамика изменения цен на рынке недвижимости ?

За последние полгода средняя сумма за кв.м. выросла на 1760 руб. Колебание цен происходило от 120141 руб. до 122822 руб. На текущий момент наблюдается тенденция к уменьшению цены.
Похожие объявления
Обновлено
12.05.2026
Фотографии
7
Объявление 734199
Санкт-Петербург, Центральный, Литейный проспект, д.53 литера А
34 500 000
руб. Продажа
246 м2
Обновлено
08.05.2026
Фотографии
14
Объявление 737955
Санкт-Петербург, Петроградский, Петроградская набережная, д.18к3 литера В
18 178 000
руб. Продажа
218 м2
Обновлено
08.05.2026
Фотографии
15
Объявление 737956
Санкт-Петербург, Петроградский, Петроградская набережная, д.18к3 литера В
18 178 000
руб. Продажа
218.7 м2
Обновлено
08.05.2026
Фотографии
10
Объявление 734695
Санкт-Петербург, Василеостровский, Средний В.О. проспект, д.85 литера У
51 077 334
руб. Продажа
299 м2
Обновлено
08.05.2026
Фотографии
15
Объявление 726135
Санкт-Петербург, Адмиралтейский, Прядильный переулок, д.8-10 литера А
10 441 980
руб. Продажа
253.7 м2
Обновлено
04.05.2026
Фотографии
15
Объявление 736471
Санкт-Петербург, Московский проспект, д.114
103 345 210
руб. Продажа
264.3 м2
Обновлено
04.05.2026
Фотографии
15
Объявление 736483
Санкт-Петербург, Московский проспект, д.114
101 278 962
руб. Продажа
263.6 м2
Обновлено
02.04.2026
Фотографии
9
Объявление 718740
Санкт-Петербург, Адмиралтейский, Московский проспект, д.65 литера Э
87 958 505
руб. Продажа
235.1 м2
Обновлено
02.04.2026
Фотографии
9
Объявление 718743
Санкт-Петербург, Адмиралтейский, Московский проспект, д.65 литера Э
90 193 000
руб. Продажа
235.1 м2
Обновлено
02.04.2026
Фотографии
9
Объявление 718715
Санкт-Петербург, Адмиралтейский, Московский проспект, д.65 литера Э
105 019 650
руб. Продажа
245.7 м2
Вход в личный кабинет