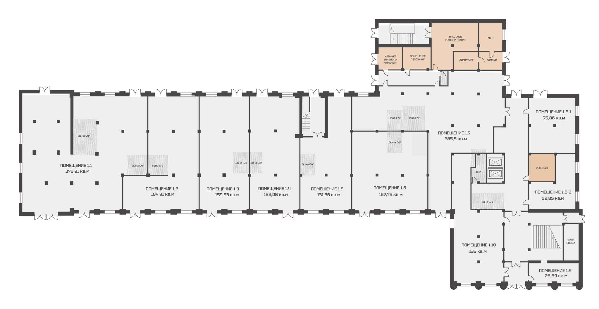
Продам помещение свободного назначения 378.9 м.кв.

Просмотров 17
227 061 817 руб.
Санкт-Петербург , Московский проспект, д.114
М-девелопмент
Показать телефон
Данные актуальны на 04.05.2026
Пожаловаться на объявление
Единственное в своем роде помещение свободного назначения на углу Московского и Лиговского проспектов! Расположено на 1 этаже бизнес-центра класса А "М114". Развивайте свой бизнес или сдавайте (сами или через нашу УК) . Помещение свободной планировки на 1 этаже с 3 отдельными входами напротив Триумфальной арки и метро Московские ворота. ОТЛИЧНАЯ ДОСТУПНОСТЬ до ключевых транспортных узлов: Московский вокзал - 12 минут, аэропорт Пулково - 20 минут, Экспофорум - 20 минут, ЗСД - 8 минут, ШМСД - 2 минуты (на авто) . Метро - 3 минуты пешком. "М114" - новый центр делового притяжения Московского района. Компания СОЮЗ-Девелопмент занимается преображением исторического здания, формируя новое видение - БИЗНЕС-ПАРК современной деловой культуры класса А. Концепция разработана международной компанией SEGREX Design, а управлением займется один из лидеров Российского рынка УК IPG. Estate. Указана стоимость при 100% оплате. ХАРАКТЕРИСТИКИ ПОМЕЩЕНИЯ №1.1: - Общая площадь 379 м2, - Фасады выходят на Московский и Лиговский проспекты, виды Триумфальных Московских ворот, - Свободная планировка, - Высота потолкa 4 м, - 3 отдельных входа, - Oхраняемые парковочные места на территории бизнес-парка М114. ОЖИДАЕМАЯ ДОХОДНОСТЬ: - Средняя прогнозируемая ставка аренды 4500 р. /м2, - Годовая доходность до 11,5% (в модель заложена индексация 7% в год) - Срок окупаемости от 8,5 лет. ВАРИАНТЫ ПРИОБРЕТЕНИЯ: + 100% оплата, + Рассрочки с ПВ от 30% и удорожанием на остаток (более подробная информация и расчеты - в отделе продаж) ++++++++++++ Напишите нам в чат - пришлем презентацию объекта. Проводим показы на месте - записывайтесь по телефону.

Дополнительная информация

Тип здания Бизнес-центр Этаж 1 Этажность 3 Количество комнат - Вход Отдельный Ремонт Без ремонта
Интернет Есть Кондиционер Есть Вентиляция Есть Пожарная сигнализация Есть Красная линия -
Объекты, находящиеся поблизости
Банки, банкоматы
Финстар 217м
ПАО Сбербанк 300м
ПАО "Промсвязьбанк" 329м
Банк ГПБ (АО) 336м
Дом РФ 387м
Столовые, кафе
Хлебник 252м
Big 1 267м
Тарелка 275м
Lindfors 280м
Super Шаверма 280м
Медучреждения
Горздрав 257м
СиноМед 268м
Будь здоров 276м
Help 293м
Линия здоровья 303м
Автосервис
Nosta 387м
Парковки
Холидей Инн 400м
Динамика изменения цен на рынке недвижимости ?

За последние полгода средняя сумма за кв.м. выросла на 5431 руб. Колебание цен происходило от 172490 руб. до 177943 руб. На текущий момент наблюдается тенденция к росту цены.
Вход в личный кабинет